OUR PRODUCTS
一、概述
HYU系列耐腐耐磨液下泵,其过流部件采用性能优异的超高分子量聚乙烯(UHMWPE)整体模压而成,该材质被称为新颖的泵用耐腐耐磨工程塑料,特出的优点是:在所有工程塑料中,它具有优异的耐磨性、耐冲击性、抗蠕变性,同时还具有很好的耐腐蚀性能,适用于输送-20℃~90℃范围内的酸性、碱性料浆和酸性、碱性清夜。
该系列泵能广泛应用于以下行业:
1、有色金属湿法冶炼止:特别适用于铅、锌、金、银、铜、锰、锚、稀土等湿法冶炼中的各种酸液、碱液、腐蚀性矿浆、电解液、废酸、污水等介质的输送。
2、硫 酸 磷 肥 业:稀酸、母液、含硅胶的氟硅酸、磷酸料浆等介质的输送。
3、水 处 理 环 保 业:可输送各种带杂质的污水。
4、农药、染料,精细化工业:可输送含溶剂的酸、碱液体,混合酸,还可输送含溶济的料浆及含溶剂的酸、碱性料浆。
特别说明:用户如在腐蚀性方面特殊要求,本系列泵的泵体、叶轮等可根据用户的需要用聚偏氟乙丙稀(F2)或丙稀(PP)等材料制作。
二、型号义说明
三、主要零部件材质及性能特点
其主要特点是:
l、泵体为整体模压而成,中间支架为聚丙稀制作,既有很好的防腐性能,又有钢的强度,因此泵体运行的稳定性、可靠性很好。
2、泵体与连接筒的连接以及泵体与泵盖之间的连接,均采用大螺距螺纹连接,安装维修更加方便。由于液下部位不用金属紧固螺钉,无腐蚀性损坏之虑,其整体防腐性能十分优越。
四、性能参数表

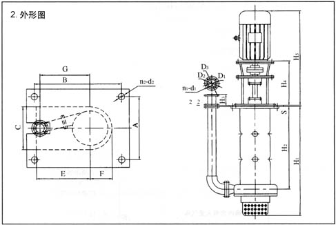
五、外形及安装尺寸
六、安装使用及维修说明
1、安装:将泵垂直固定于所需的位置上,连接好出口管路。
2、启动:接通电源点启动,查看电机转动方问与泵上箭头所指方向是否一致,如不一致应重新接线调整;电机运转正常后应慢慢开启出口阀门至所需的工作状态。
3、停车:先关闭出口阀门,再停电源。
4、拆卸:
a、先拆下液管18,旋井过滤罩12(过滤罩与泵斋之间为右旋螺纹),再旋下泵盖11(拆装时可利用泵盖上的两只拆装孔),然后依次拆下拼帽组件14、叶轮10和轴套8(拼帽与轴之间为左旋螺纹);
b、旋下泵体9(有旋螺纹),拧下拼圈17(左旋螺纹),取出K型圈16。
5、安装:将已经磨损或损坏的零件更换后,按拆卸相反的顺序将泵组装好,安装时应特别注意各部位垫片的安装,不要多装或少装。
6、检查:发装完毕,应用下盘动联轴器,看看是否运砖灵活,如砖动不灵活或有不正常噪音、卡死等异常,应重新拆泵检查,清理异物,消除噪音,或通过增减叶轮垫调整叶轮与泵体之间的间隙,此间隙应保证在1-2mm之间,通过增减泵盖垫调整叶轮与泵盖之间的间隙,此间隙应保证花l-2mm之间,安装好后,再盘动联轴器,如此反复直到动转灵活方可接电,按启动程序使泵进入工作状态。
7、注意事项:山于该泵的大部分零件是塑料制成的,故不能对其进行强力冲击和扭曲,以免产生不必要的损坏。
